Appartamenti in vendita via 2 GIUGNO 36, Monteprandone, località Centobuchi

Marche Ascoli Piceno Monteprandone Centobuchi

VIA 2 GIUGNO 36

Prezzo

€ 135.000

Ampio e Luminoso Quadrilocale a Centobuchi - Via 2 Giugno
Rif.: MCT-521

  • Vendita
  • Contratto
  • Intera proprietà
  • Tipo di Proprietà
  • 5
  • Locali
  • 3
  • Camere
  • 2
  • Bagni
  • N.D.
  • Classe Energetica
  • Marche
  • Regione
  • Ascoli Piceno
  • Provincia
  • Monteprandone
  • Comune
  • Centobuchi
  • Località

Ampio e Luminoso Quadrilocale a Centobuchi - Via 2 Giugno
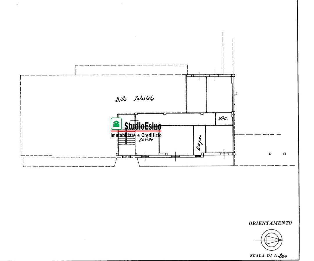
In posizione centralissima e strategica a Centobuchi (Monteprandone), proponiamo in vendita un appartamento di ampia metratura situato al secondo piano, ideale per famiglie che cercano spazio, comodità e vicinanza ai servizi.
L'immobile si distingue per l'ottima distribuzione degli spazi interni:
Zona Giorno: Accogliente ingresso, ampio soggiorno separato e cucina abitabile spaziosa.
Zona Notte: Tre camere da letto di dimensioni generose (due matrimoniali e una doppia).
Servizi: Due bagni completi, di cui uno principale con vasca e finestra e un secondo bagno con doccia e aerazione forzata.
Completano la proprietà un balcone a servizio degli ambienti principali, un comodo garage, cortile recintato con posti auto riservati ai condomini e una pratica cantina.


STAI CERCANDO CASA? HAI BISOGNO DI UNA VALUTAZIONE GRATUITA?
Compila la scheda RICHIESTA INFORMAZIONI che trovi accanto a questo annuncio, indicando le tue necessità.
Ti contatteremo prontamente per accompagnarti nella tua ricerca.
visita le altre proposte: www.studioesino.com

Informazioni sull'ubicazione: Servizi: Zona totalmente pianeggiante e servita. Supermercati, banche, scuole e uffici sono raggiungibili a piedi in pochi minuti.
Contesto: Quartiere residenziale consolidato, molto richiesto da famiglie per la sicurezza e la vicinanza ai parchi pubblici.
Distanze: Il mare (Porto d'Ascoli/San Benedetto) dista circa 5.

  • € 38
  • Condominio mensile

Caratteristiche

Condizioni: Abitabile
Riscaldamento: Autonomo
Parcheggio: Garage
Piano: 2 - piani edificio: 4
Cucina: Abitabile
Arredato: Arredato
Balcone: Si
Anno di Costruzione: 1977
Altezza: 283
Cucina Abitabile

Foto

Ampio e Luminoso Quadrilocale a Centobuchi - Via 2 Giugno - 1
Ampio e Luminoso Quadrilocale a Centobuchi - Via 2 Giugno - 2
Ampio e Luminoso Quadrilocale a Centobuchi - Via 2 Giugno - 3
Ampio e Luminoso Quadrilocale a Centobuchi - Via 2 Giugno - 4
Ampio e Luminoso Quadrilocale a Centobuchi - Via 2 Giugno - 5
Ampio e Luminoso Quadrilocale a Centobuchi - Via 2 Giugno - 6
Ampio e Luminoso Quadrilocale a Centobuchi - Via 2 Giugno - 7
Ampio e Luminoso Quadrilocale a Centobuchi - Via 2 Giugno - 8
Ampio e Luminoso Quadrilocale a Centobuchi - Via 2 Giugno - 9
Ampio e Luminoso Quadrilocale a Centobuchi - Via 2 Giugno - 10
Ampio e Luminoso Quadrilocale a Centobuchi - Via 2 Giugno - 11
Ampio e Luminoso Quadrilocale a Centobuchi - Via 2 Giugno - 12
Ampio e Luminoso Quadrilocale a Centobuchi - Via 2 Giugno - 13
Ampio e Luminoso Quadrilocale a Centobuchi - Via 2 Giugno - 14
Ampio e Luminoso Quadrilocale a Centobuchi - Via 2 Giugno - 15
Ampio e Luminoso Quadrilocale a Centobuchi - Via 2 Giugno - 16
Ampio e Luminoso Quadrilocale a Centobuchi - Via 2 Giugno - 17
Ampio e Luminoso Quadrilocale a Centobuchi - Via 2 Giugno - 18
Ampio e Luminoso Quadrilocale a Centobuchi - Via 2 Giugno - 19
Ampio e Luminoso Quadrilocale a Centobuchi - Via 2 Giugno - 20
Ampio e Luminoso Quadrilocale a Centobuchi - Via 2 Giugno - 21
Ampio e Luminoso Quadrilocale a Centobuchi - Via 2 Giugno - 22
Ampio e Luminoso Quadrilocale a Centobuchi - Via 2 Giugno - 23
Ampio e Luminoso Quadrilocale a Centobuchi - Via 2 Giugno - 24
Ampio e Luminoso Quadrilocale a Centobuchi - Via 2 Giugno - 25
Ampio e Luminoso Quadrilocale a Centobuchi - Via 2 Giugno - 26
Ampio e Luminoso Quadrilocale a Centobuchi - Via 2 Giugno - 27
Ampio e Luminoso Quadrilocale a Centobuchi - Via 2 Giugno - 28
Ampio e Luminoso Quadrilocale a Centobuchi - Via 2 Giugno - 29
Ampio e Luminoso Quadrilocale a Centobuchi - Via 2 Giugno - 30
Ampio e Luminoso Quadrilocale a Centobuchi - Via 2 Giugno - 31
Ampio e Luminoso Quadrilocale a Centobuchi - Via 2 Giugno - 32
Ampio e Luminoso Quadrilocale a Centobuchi - Via 2 Giugno - 33
Ampio e Luminoso Quadrilocale a Centobuchi - Via 2 Giugno - 34
Ampio e Luminoso Quadrilocale a Centobuchi - Via 2 Giugno - 35
Ampio e Luminoso Quadrilocale a Centobuchi - Via 2 Giugno - 36
Ampio e Luminoso Quadrilocale a Centobuchi - Via 2 Giugno - 37

Virtual Tour

Planimetrie

Video

Mappa

Benvenuto! Clicca su uno dei nostri assistenti per inviare un messaggio, vi risponderanno il prima possibile.

Chat via WhatsApp